Foyr Logo

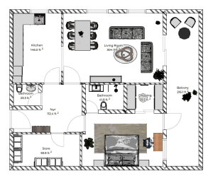
Modern Residential Flat

This compact modern-minimalist apartment features an open-concept layout with warm wooden flooring and clean white walls. The living area includes a cozy sectional sofa and a circular coffee table leading to a bright deck. A sleek kitchen with minimalist cabinetry and a small dining area complements the neutral palette. The bedroom is serene and functional, featuring a queen bed, ample storage, and direct access to a private deck with lounge chairs. A compact bathroom and efficient corridor layout enhance the smart use of space.

1320 sq. ft. | 1 Bedroom | 1 Bathroom | 1 Half Bath

#1BHK
#CompactHome
#ModernApartment

See More

Modern Residential Flat Edit this Floor Plan
Modern Residential Flat

1320 sq. ft. | 1 Bedroom | 1 Bathroom | 1 Half Bath

Single-Floor 2 Bedroom Layout Edit this Floor Plan
Single-Floor 2 Bedroom Layout

768.5 sq. ft. | 2 Bedrooms | 1 Bathroom | 1 Level

Luxury One-Bedroom House Edit this Floor Plan
Luxury One-Bedroom House

2160 sq. ft. | 1 Bedroom | 1 Bathroom | 1 Half Bath | 1 Level

3 Bedroom Compact Home Edit this Floor Plan
3 Bedroom Compact Home

953.3 sq. ft. | 3 Bedrooms | 2 Bathrooms | 1 Level

Modern Single-Storey House Edit this Floor Plan
Modern Single-Storey House

2365.7 sq. ft. | 4 Bedrooms | 2 Bathrooms | 1 Half Bath | 1 Level

Single-Floor Luxury Residence Edit this Floor Plan
Single-Floor Luxury Residence

2967 sq. ft. | 5 Bedrooms | 2 Bathrooms | 1 Half Bath | 1 Level

Compact Micro Apartment Edit this Floor Plan
Compact Micro Apartment

200 sq. ft. | 1 Bedroom | 1 Bathroom | 1 Level

Modern Studio Apartment Edit this Floor Plan
Modern Studio Apartment

288 sq. ft. | 1 Bedroom | 1 Bathroom | 1 Level

Minimalist U-Shaped Kitchen Edit this Floor Plan
Minimalist U-Shaped Kitchen

135 sq. ft.

Small bath with bathtub Edit this Floor Plan
Small bath with bathtub

51 sq. ft.

Modern Farmhouse Edit this Floor Plan
Modern Farmhouse

5450 sq. ft. | 4 Bedrooms | 3 Bathrooms | 1 Half Bath | 1 Level

Grandparents’ Suite Edit this Floor Plan
Grandparents’ Suite

725 sq. ft. | 1 Bedroom | 1 Bathroom | 1 Half Bath | 1 Level

Ada bathroom Edit this Floor Plan
Ada bathroom

131 sq. ft.

Bathroom laundry combo Edit this Floor Plan
Bathroom laundry combo

99.2 sq. ft.

Compact 2-Bedroom Tiny Home Edit this Floor Plan
Compact 2-Bedroom Tiny Home

560 sq. ft. | 2 Bedrooms | 1 Bathroom | 1 Level

Modern Minimal Living Home Edit this Floor Plan
Modern Minimal Living Home

640 sq. ft. | 2 Bedrooms | 1 Bathroom | 1 Level

Contemporary Open-Plan Home Edit this Floor Plan
Contemporary Open-Plan Home

1200 sq. ft. | 2 Bedrooms | 2 Bathrooms | 1 Level

Modern Ranch-Style Layout Edit this Floor Plan
Modern Ranch-Style Layout

3731.1 sq. ft. | 3 Bedrooms | 2 Bathrooms | 1 Level

Three-Quarter Bathroom Edit this Floor Plan
Three-Quarter Bathroom

168 sq. ft. | 1 Bathroom

Craft Room floor plan Edit this Floor Plan
Craft Room floor plan

403 sq. ft.

Basement floor plan Edit this Floor Plan
Basement floor plan

1000 sq. ft.

Jack and Jill bath Edit this Floor Plan
Jack and Jill bath

55 sq. ft. | 1 Bathroom