Foyr Logo

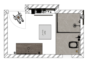
Ada bathroom

This modern-minimalist bathroom design achieves a perfect balance of accessibility and elegance. Featuring an ADA-compliant layout, the space provides ample maneuvering area and thoughtful fixture placement. The design showcases soft beige marble walls and flooring complemented by gold-accented fixtures and trim, adding a sense of refined luxury. A sleek floating vanity with a wall-mounted mirror enhances openness, while the walk-in shower area is both functional and stylish, enclosed with a transparent divider.

131 sq. ft.

#modernbathroom
#bathroomlayout
#floorplantopview
#interiordesign
#minimalistdesign

See More

Modern Residential Flat Edit this Floor Plan
Modern Residential Flat

1320 sq. ft. | 1 Bedroom | 1 Bathroom | 1 Half Bath

Single-Floor 2 Bedroom Layout Edit this Floor Plan
Single-Floor 2 Bedroom Layout

768.5 sq. ft. | 2 Bedrooms | 1 Bathroom | 1 Level

Luxury One-Bedroom House Edit this Floor Plan
Luxury One-Bedroom House

2160 sq. ft. | 1 Bedroom | 1 Bathroom | 1 Half Bath | 1 Level

3 Bedroom Compact Home Edit this Floor Plan
3 Bedroom Compact Home

953.3 sq. ft. | 3 Bedrooms | 2 Bathrooms | 1 Level

Modern Single-Storey House Edit this Floor Plan
Modern Single-Storey House

2365.7 sq. ft. | 4 Bedrooms | 2 Bathrooms | 1 Half Bath | 1 Level

2D Single-Floor Luxury Residence Edit this Floor Plan
2D Single-Floor Luxury Residence

2967 sq. ft. | 5 Bedrooms | 2 Bathrooms | 1 Half Bath | 1 Level

Compact Micro Apartment Edit this Floor Plan
Compact Micro Apartment

200 sq. ft. | 1 Bedroom | 1 Bathroom | 1 Level

Modern Studio Apartment Edit this Floor Plan
Modern Studio Apartment

288 sq. ft. | 1 Bedroom | 1 Bathroom | 1 Level

Minimalist U-Shaped Kitchen Edit this Floor Plan
Minimalist U-Shaped Kitchen

135 sq. ft.

2D Small bath with bathtub Edit this Floor Plan
2D Small bath with bathtub

51 sq. ft.

Modern Farmhouse Edit this Floor Plan
Modern Farmhouse

5450 sq. ft. | 4 Bedrooms | 3 Bathrooms | 1 Half Bath | 1 Level

Grandparents’ Suite Edit this Floor Plan
Grandparents’ Suite

725 sq. ft. | 1 Bedroom | 1 Bathroom | 1 Half Bath | 1 Level

Ada bathroom Edit this Floor Plan
Ada bathroom

131 sq. ft.

Bathroom laundry combo Edit this Floor Plan
Bathroom laundry combo

99.2 sq. ft.

Compact 2-Bedroom Tiny Home Edit this Floor Plan
Compact 2-Bedroom Tiny Home

560 sq. ft. | 2 Bedrooms | 1 Bathroom | 1 Level

Modern Minimal Living Home Edit this Floor Plan
Modern Minimal Living Home

640 sq. ft. | 2 Bedrooms | 1 Bathroom | 1 Level

Contemporary Open-Plan Home Edit this Floor Plan
Contemporary Open-Plan Home

1200 sq. ft. | 2 Bedrooms | 2 Bathrooms | 1 Level

Modern Ranch-Style Layout Edit this Floor Plan
Modern Ranch-Style Layout

3731.1 sq. ft. | 3 Bedrooms | 2 Bathrooms | 1 Level

Three-Quarter Bathroom 2D Edit this Floor Plan
Three-Quarter Bathroom 2D

168 sq. ft. | 1 Bathroom

Craft Room floor plan Edit this Floor Plan
Craft Room floor plan

403 sq. ft.

Basement floor plan Edit this Floor Plan
Basement floor plan

1000 sq. ft.

Jack and Jill bath Edit this Floor Plan
Jack and Jill bath

55 sq. ft. | 1 Bathroom