Table of Contents
Choosing the right floor plan is the most critical decision you will make when designing your new apartment. It is the blueprint for your daily life, dictating everything from morning routines to how you host friends and family. But with so many options, finding the perfect 3-bedroom apartment floor plan can feel overwhelming.
That is why we have put together a straightforward guide to nine distinct 3-bed apartment floor plan layouts. From clever, space-saving designs to sprawling luxury layouts, you will find inspiration to match your exact needs. We will cover the essentials of what makes a layout functional and how you can visualize your space long before you commit.
These examples are more than just lines on paper. They are the foundation for creating a home that is efficient, comfortable, and perfectly suited to a specific lifestyle. Letโs explore the possibilities and find the ideal 3-bedroom apartment floor plan for your next project.
CRO Banner:ย
What Makes a 3 Bedroom Apartment Floor Plan Great?
A great layout feels right because it combines practical function with personal comfort. Here is what to look for in a 3-bedroom apartment floor plan.
- Flow and Circulation: How easily can you move from room to room? A great plan has clear pathways without awkward bottlenecks or wasted space. You should be able to get from the entryway to the kitchen or bedrooms intuitively.
- Use of Natural Light: Where are the windows placed? Does the layout maximize sunlight in key living areas like the living room and kitchen? Good 3-bedroom apartment plans often place common areas near the largest windows.
- Smart Storage: A great plan incorporates closets, pantries, and utility spaces without sacrificing living area. Look for built-in solutions and walk-in closets that add function, not just clutter.
- Functionality: Does the layout suit your lifestyle? A plan for a family with young children will look very different from one for roommates or a couple who works from home. The best plan supports daily routines.
CTA: Edit this project
Essentials of a 3-bedroom apartment floor plan
Before diving into specific layouts, let’s cover the basic design considerations you need to keep in mind. A typical 3-bedroom floor plan apartment offers great versatility.
- They provide ample room to spread out, suiting families, roommates, or couples.
- Most three-bedroom apartments range from 800 to 1400 square feet.
- This size typically includes two full bathrooms, often with one as an ensuite.
- You will usually find larger kitchens with full-size appliances.
- These plans feature generous living and dining areas for hosting.
- Many also offer dedicated laundry spaces and private outdoor access like a balcony.
9 Essential 3 Bed Apartment Floor Plans
Finding the perfect layout means matching the design to the resident’s lifestyle. Here are nine essential 3-bedroom apartment floor plan examples to inspire your next design.
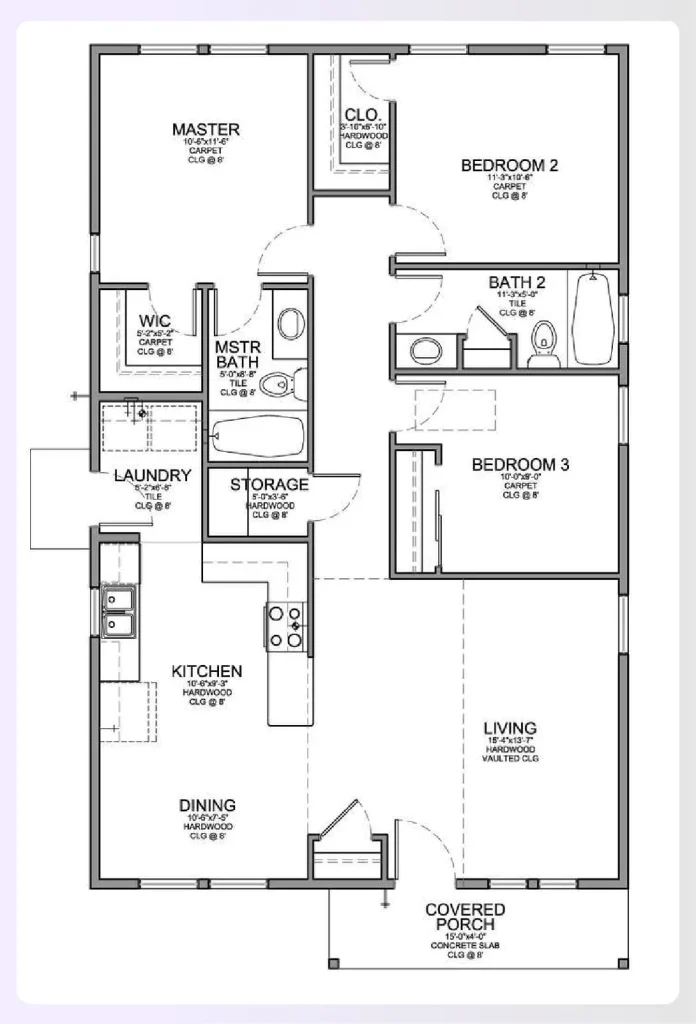
1. The Compact 3 Bedroom Apartment Floor Plan Layout
This efficient 3-bedroom apartment floor plan is designed to maximize every square inch. It often features a combined living and dining area, a galley-style kitchen, and bedrooms grouped together to save hallway space. Shared “Jack and Jill” bathrooms are common. With Foyr Neo, you can use the floor plan creator to ensure every piece of furniture fits perfectly.
Key Features:
- Features a combined living and dining area to create a more open, shared space.
- Includes a highly efficient U-shaped or galley-style kitchen to save valuable square footage.
- Minimizes hallway and corridor space, dedicating more room to functional living areas.
- A compact laundry closet is designed to fit a stacked washer and dryer unit.
Best For: Roommates, small families on a budget, or as a first-time property.

A smart, compact 3-bed apartment floor plan example, Credit: Pinterest
2. The Open-Concept 3 Bedroom Apartment Floor Plan
The open-concept floor plan layout remains incredibly popular for its airy and social feel. This 3-bedroom apartment floor plan removes walls between the kitchen, living room, and dining area, creating one large, cohesive space. It is perfect for entertaining and family gatherings. You can use Foyr Neo to test different furniture arrangements from a library of 60,000+ 3D models to define each “zone” without using walls.

This open 3-bedroom apartment floor plan is perfect for entertaining, Credit: Pinterest
Key Features:
- A large, central “great room” combines the kitchen, dining, and living areas seamlessly.
- A multifunctional kitchen island provides extra counter space, storage, and casual seating.
- The lack of interior walls allows natural light to flow uninterrupted through the space.
- Offers a highly flexible furniture arrangement to define different zones without using walls.
Best For: Families who want to interact, serial entertainers, and those who dislike enclosed spaces.
3. The Split-Bedroom 3 Bedroom Apartment Floor Plan
This layout is all about privacy. The split-bedroom 3-bedroom apartment floor plan places the primary suite on one side of the apartment and the two secondary bedrooms on the opposite side, separated by the central living area. This 3-bedroom house plan is an ideal setup for parents, roommates, or anyone hosting long-term guests.
Key Features:
- The primary suite is completely isolated from the secondary bedrooms for maximum privacy.
- The central living and kitchen area serves as a functional and acoustic buffer.
- This layout often features two distinct “wings” on opposite sides of the apartment.
- Provides enhanced sound privacy between the primary suite and the other bedrooms.
Best For: Roommates, families with older children, or couples who have frequent guests.
To help clients truly understand this layout’s benefits, you can create an immersive 3D walkthrough. This video from Foyr shows how you can create stunning, realistic tours for your clients.

A split 3-bedroom apartment floor plan offering maximum privacy, Credit: Pinterest
4. The Home Office 3 Bedroom Apartment Floor Plan Layout
With remote work as the new normal, this 3-bedroom apartment floor plan is in high demand. It dedicates one of the three bedrooms as a permanent, functional office. Often, this room is smaller and located near the apartment’s entrance to keep work life separate from private living spaces. By using a 3D modelling software like Foyr, you can design custom built-in shelving and desks to create a truly productive workspace.
Key Features:
- The third bedroom is strategically positioned near the entrance for easy client access.
- Often includes a nearby half-bath or powder room, keeping work life separate.
- Features good sound insulation from the main living areas for focused, quiet work.
- The space is optimized for desks, built-in shelving, and excellent task lighting.
Best For: Remote workers, freelancers, students, or creatives.

A versatile 3-bedroom apartment floor plan with a dedicated office,Credit: Pinterest
5. The Central Living 3 Bedroom Apartment Floor Plan
In this classic design, all rooms branch off a central living and dining area. This 3-bedroom apartment floor plan minimizes wasted hallway space and creates a cozy, communal hub. The kitchen may be open or enclosed, but the living room is the undeniable heart of the home, with bedrooms and bathrooms accessible from its perimeter.

A classic 3-bedroom apartment floor plan with a central hub, Credit: Pinterest
Key Features:
- The main living room serves as the central access point to all other rooms.
- Wasted hallway space is minimal or non-existent, making the layout highly efficient.
- All three bedrooms are typically clustered together in one area of the apartment.
- This design makes for a very efficient and functional use of the total square footage.
Best For: Young families who want to be near their children and those who prefer a single, central gathering space.
6. The Corner Unit 3 Bedroom Apartment Floor Plan
A corner unit is highly desirable because it typically offers windows on two different walls. This floods the 3-bedroom apartment floor plan with natural light and provides cross-ventilation. These layouts often feature L-shaped living areas and wrap-around balconies. You can use Foyr Neoโs smart lighting controls to simulate the natural light at different times of day, helping you plan the perfect ambiance.
Key Features:
- Features windows on at least two different exterior walls for cross-ventilation.
- The dual exposure provides abundant natural light throughout the entire day.
- This layout often includes a desirable wrap-around balcony with expansive views.
- The main living and dining area is typically placed in the brightest corner.
Best For: Anyone who prioritizes natural light, enjoys city or nature views, and wants an airy, open feel.

A bright, light-filled corner unit 3-bedroom apartment floor plan, Credit: Pinterest
7. The Duplex / Two-Floor 3 Bedroom Apartment Floor Plan Layout
A duplex or two-story 3-bedroom apartment floor plan offers a house-like feel within an apartment building. This layout clearly separates public and private spaces, with the kitchen and living areas on one floor and all three bedrooms on the other. This separation is excellent for noise control. You can even design unique architectural features, like the staircase, using Foyr Neoโs advanced modeling tools.
Key Features:
- Public living spaces are on one level, while all bedrooms are on another.
- An internal staircase connects the two floors, creating a house-like feel.
- Provides an excellent separation of public entertainment zones and private family areas.
- This design often includes two separate entry and exit points on each floor.
Best For: Families, or anyone who wants the privacy and separation of a multi-story home.
See how easy it is to create complex, multi-level designs and visualize your apartment layout with this helpful tutorial on Foyr Neo.

A duplex 3-bedroom floor plan apartment with two levels, Credit: Pinterest
8. The 3 Bedroom Apartment Floor Plan Layout with Servant’s Room
Common in many international and luxury buildings, this 3-bedroom apartment floor plan includes a small, additional room, typically with its own bathroom, located near the kitchen or utility area. This space is flexible and can be used for live-in help, as a dedicated storage or pantry, or even a small, isolated utility room.
Key Features:
- Includes a small, flexible fourth room, often with its own attached ensuite bathroom.
- A separate access point is usually provided through the kitchen or utility area.
- The room is intentionally isolated from the main family bedrooms for privacy.
- This space provides excellent utility, flexibility, and extra storage for the home.
Best For: Large families, those requiring live-in help, or anyone needing extra utility and storage space.

A functional 3-bedroom apartment floor plan with a utility room, Credit: Pinterest
9. The Luxury 3 Bedroom Apartment Floor Plan Layout
This 3-bedroom apartment floor plan is defined by its generous scale and high-end features. Expect a formal entryway or foyer, a gourmet kitchen with an island, a sprawling primary suite with a massive walk-in closet, and ensuite bathrooms for every bedroom. It may also include a separate den, library, or media room. You can use Foyr Neo to create stunning 12K quality renders that capture the accurate appearance of interior design materials to present to high-end clients.
Key Features:
- A formal foyer or gallery entryway creates a sophisticated and grand first impression.
- Includes a large, gourmet kitchen with professional-grade appliances and an oversized island.
- Each of the three bedrooms features its own private ensuite bathroom for comfort.
- An expansive primary suite includes a walk-in closet and other luxury features.
Best For: High-end clients, large families, and those who prioritize spaciousness and an appearance of luxury.

An expansive, luxury 3-bedroom apartment floor plan example, Credit: Pinterest
How to Choose the Right Floor Plan for You
Here is a simple process to help you or your client select the perfect 3-bedroom apartment floor plan.
- Assess Your Lifestyle: How do you live? Do you host large dinners, work from home, or need separate play areas for kids? Be realistic about your daily habits and choose a layout that supports them, not one that forces you to change.
- Think Long-Term: Your needs may change over the next few years. That extra bedroom might become a nursery, a home gym, or a guest room. Look for 3-bedroom apartment plans with flexible spaces that can adapt with you.
- Don’t Underestimate Storage: Walk through the plan and mentally “place” your belongings. Where will the vacuum go? The holiday decorations? The extra linens? A lack of storage is a daily frustration that many people overlook when looking at empty 3-bedroom apartment floor plans with dimensions.
- Visualize the Furniture: That living room might look huge on paper, but will your sectional sofa fit? The best way to know is to visualize it. Using a powerful 3D visualization software like Foyr allows you to upload a 2D plan, drag and drop your furniture, and see the space in a stunning 3D render. Itโs the best way to understand the scale and flow before you commit.
Bring Your 3 Bedroom Apartment Floor Plan to Life with Foyr
Choosing the right 3-bedroom floor-plan apartment provides the blueprint, but it’s just the beginning. The true potential of your space is unlocked when you can see it, feel it, and design it yourself. This is the essence of Foyr Neo, a powerful interior design software, empowering you to transform a flat layout into an interactive 3D home.
- Instantly convert any 2D floor plan into a 3D model with a single click.
- Drag and drop from a library of 60,000+ render-ready 3D models.
- Use the AI Magik Bar to change textures with simple text prompts.
- Create photorealistic 12K renders in just minutes, not hours.
- Generate immersive 3D walkthroughs to share with clients.
Don’t just pick a plan. Bring it to life and create a space that is perfectly and completely yours. Sign up for a 14-day free trial of Foyr Neo and see the results for yourself.
Frequently Asked Questions (FAQs)
What is a good size for a 3-bedroom apartment?
A comfortable size for a three-bedroom apartment typically falls between 800 and 1400 square feet. Below this, the bedrooms and living area may feel cramped. Luxury units, however, can easily exceed 2000 square feet. The right size depends on the layout’s efficiency and your specific 3-bedroom apartment floor plans with dimensions.
How many bathrooms should a 3-bedroom apartment have?
A 3-bedroom apartment floor plan should ideally have at least two full bathrooms. This often includes a common bathroom for the two smaller bedrooms and guests, and an ensuite bathroom attached to the primary suite. Some larger or luxury 3-bedroom apartment plans may feature 2.5 or even 3.5 baths.
Which floor is best in a 3-floor apartment?
This depends on your priorities. The ground floor is best for accessibility (no stairs) and may have a patio. The top floor is best for quiet (no neighbors above) and often has the best views and light. The middle floor is a balance, offering better security than the ground floor and lower utility bills due to insulation from units above and below.
Is 3-BHK possible in 1000 sq ft?
Yes, a 3-BHK (Bedroom, Hall, Kitchen) is definitely possible in 1000 sq ft. This is a common and efficient size. To make it work, the 3-bedroom apartment floor plan will likely feature modest-sized bedrooms, a combined living and dining area, and smart, space-saving storage solutions rather than sprawling, open spaces.





