Creating a successful restaurant business requires more than delicious food; the physical layout dictates your operational efficiency. You need a seamless flow that allows quick service while ensuring guest comfort. Learning how to create restaurant floor plan layouts helps you visualize these spatial relationships before spending money on construction.
A well-structured plan increases table management efficiency and impacts your bottom line by optimizing every square foot. We will guide you through the essential steps for creating restaurant floor plan designs that function perfectly. Using the right software allows you to experiment with various styles without risk. You can test different paint colors and furniture placements to maximize your revenue potential.
Why Do You Need a Restaurant Floor Plan?
A strategic floor plan serves as the foundational roadmap for your restaurant and ensures that every element works harmoniously. It eliminates guesswork by providing a clear visual representation of how your staff and customers will interact within the available space. With a well-made restaurant floor plan
- You can optimize your serving capacity
- Obtain necessary permits faster as the floor plan meets all safety regulations
- Improve staff efficiency by creating clear pathways between the kitchen space and the dining area
- Prevent costly construction mistakes by identifying potential clashes between architectural features and kitchen equipment
Considerations While Designing a Restaurant Floor Plan
Designing a functional space requires you to juggle multiple zones, each with distinct requirements for plumbing and electrical systems. You must understand how to create restaurant floor plan mechanics that fit these complex systems within your architectural constraints without compromising the restaurant design.
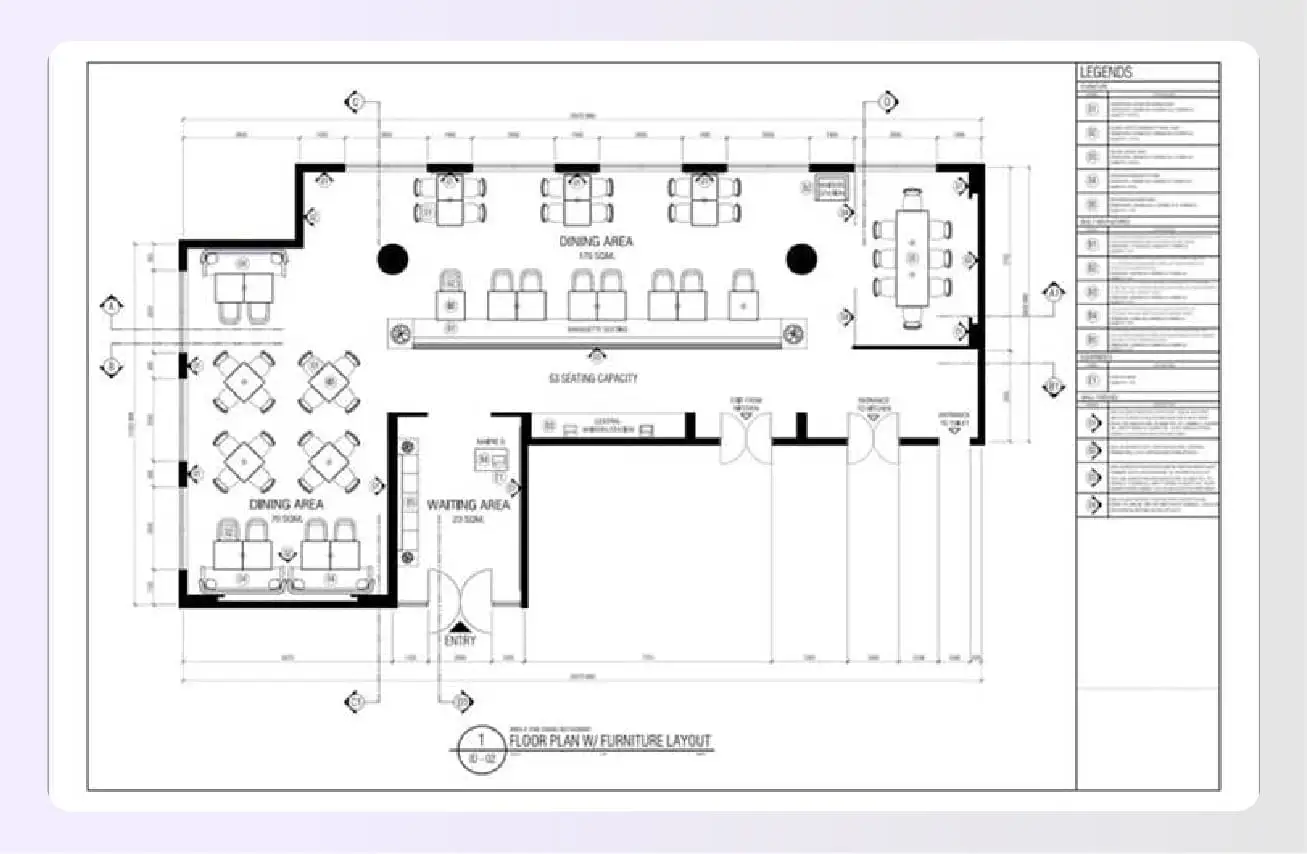
The Dining Room (Front-of-House)
The dining room is where your guests spend their time and it generates revenue through their experiences. You should use software to experiment with restaurant tables to find the balance between capacity and personal comfort. Proper space planning in interior design helps you maximize every inch of the floor space.

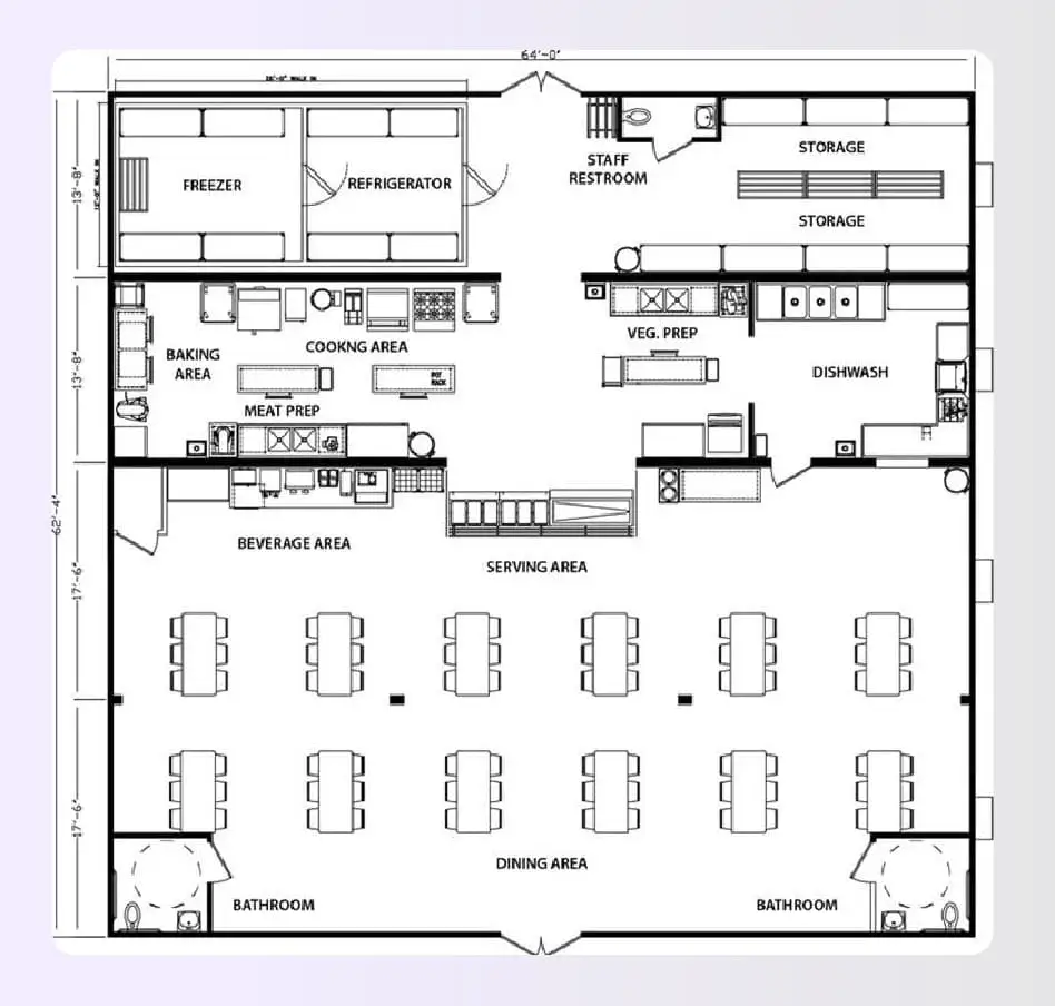
The Kitchen and Prep Areas (Back-of-House)
Your kitchen layout determines the speed of service and you need a setup that minimizes cross-traffic between the prep area and cooking stations. Unlike complex CAD tools, Foyr Neo helps you determine how to create restaurant floor plan zones easily using drag-and-drop features.

Restrooms and Employee Facilities
Restrooms are often an afterthought, but their location impacts the dining experience and can disrupt the flow if placed poorly. You can use Foyr Neo to ensure these distinct areas are accessible yet discreetly tucked away from the main dining room layout.

Entryways, Waiting Areas, and POS Stations
The entrance sets the first impression and a crowded waiting area can discourage potential walk-in customers. Knowing how to create restaurant floor plan entrances effectively helps you design a welcoming foyer that manages the front door traffic.

The Bar and Beverage Counters
A well-designed bar area acts as a focal point and a secondary revenue stream. You should learn how to create restaurant floor plan with sections for bars to visualize height and seating for better social interaction in coffee shops or bars.

Start your design journey by mastering the basics of designing amazing floor plans with this helpful tutorial from Foyr
3 Popular Types of Restaurant Kitchen Layouts
The efficiency of your back-of-house operations depends entirely on choosing a restaurant kitchen floor plan that matches your menu. You can simulate these layouts while creating drafts to see which offers the smoothest operation for your back office team.
The Island Configuration
This layout places the cooking equipment in the center of the kitchen space while the prep stations line the perimeter.

The Zone-Style Layout
The zone layout separates the kitchen into blocks for different tasks like food preparation and cleaning. You can use floor plan design tools to ensure each zone has enough room when deciding on different restaurant floor plan segments.

The Assembly Line Layout
This linear configuration is ideal for high-turnover restaurants where speed is the primary goal.

How to Design a Restaurant Floor Plan in 6 Steps?
Following a structured approach ensures you cover all technical requirements while maintaining the creative vision. Here are the steps to follow when creating restaurant floor plans:
- Measure Your Total Available Space: Start by getting accurate measurements of the total area, including any outdoor space. Utilizing a mobile app allows you to record dimensions on-site and upload them to your digital floor plan instantly.
- Determine Square Footage Per Customer: Calculate square feet per guest based on your target audience. Understanding how to create a restaurant floor plan density helps you visualize if fine dining restaurant spacing fits your building.
- Map Out Your Kitchen Workflows First: The kitchen is the engine of your restaurant, hence you must design it before the dining area. Use professional tools to place large kitchen equipment and ensure chefs have plenty of space.
- Position Your Restrooms and Utility Areas: Locate plumbing-heavy areas and storage areas near existing water lines to save money. Learning how to create restaurant floor plan overlays helps you check storage areas feasibility against your design ideas.
- Arrange Your Tables and Furniture: This is where you determine the flow by placing restaurant tables and service stations strategically. Use designing tools offering drag-and-drop interface like Foyr. This makes it easy to test different furniture arrangement styles before committing to a final plan.
- Visualize with Floor Plan Software: Finalize your layout by converting your 2D plans into immersive 3D walkthroughs. Foyr Neo is the best tool for converting restaurant layout plans into photorealistic renders in minutes.
Watch how easily you can transform a 2D restaurant floor plan into a stunning 3D render using our powerful platform.
12 Best Tips for Designing a Restaurant Floor Plan
Designing a profitable restaurant requires attention to details that influence customer behavior. Your restaurant floor plan acts as a guide to verify that these tips are implemented correctly in your final design.
Prioritize Flow and Efficiency Over Aesthetics
You should never sacrifice efficient operations for a design element that causes service delays. Focus on minimizing steps for staff and establishing a logical traffic flow. A well-structured layout prevents bottlenecks and ensures food reaches customers while it is still hot.
Ensure Accessibility (ADA Compliance)
You must ensure your restaurant is welcoming to everyone by incorporating wide walkways and accessible restrooms. Complying with safety regulations and ADA standards is not just a legal requirement; it communicates that you care about the comfort of every single guest.
Plan for Flexible Capacity and Social Distancing
The ability to rearrange tables for large parties is always a good idea for capturing revenue from group bookings. Designing flexible zones allows you to adapt to changing social distancing needs or private events without disrupting the entire dining experience.
Don’t Neglect Electrical and HVAC Planning
Your customers will not return if the lighting is too harsh or they cannot find electrical outlets. You must map out vents and utilities early to ensure personal comfort, preventing drafty tables or dark corners that ruin the meal.
Optimize the “Pass” (Where Kitchen Meets Servers)
The pass is the critical handover point where kitchen staff transfer food to service stations. You need to design clear separation here to prevent collisions between chefs and servers. This area dictates the rhythm of your entire service speed.
Create Clear Pathways for Inventory Delivery
You need a direct access route for heavy deliveries that does not cross through your main dining room. Real estate agents often check for this service entry, but you must ensure the interior path connects logically within the restaurant’s layout.
Balance Privacy with Openness in Dining Areas
Guests enjoy the energy of an open kitchen but also desire privacy for conversations. Using strategic partitions or tall plants creates distinct areas that dampen noise. This balance allows diners to feel part of the buzz without feeling exposed.
Account for Sound Control and Acoustics
Hard surfaces bounce sound and create a noisy environment that ruins the dining experience. You should visualize the placement of acoustic panels or rugs to absorb noise. A quieter room encourages guests to stay longer and order more dessert.
Strategic Lighting Placement
Interior Lighting dictates the mood and directly impacts table management. Brighter lights encourage faster turnover, while dimmer settings suggest a leisurely dining experience. You need to simulate morning, afternoon, and evening ambience to ensure your guests always look their best.
Managing the Budget for Your Build-Out
You must track spending carefully because changing your mind during construction is expensive. Making firm design decisions early allows restaurant owners to generate accurate material lists. This discipline prevents cost overruns and keeps your capital focused on essential operations.
Future-Proofing for Tech Upgrades
Technology evolves rapidly, so you should design conduits for future restaurant POS systems now. Planning for next-generation payment solutions prevents the need to tear up walls later. A flexible infrastructure ensures your business stays competitive without requiring major renovations.
Ventilation and Odor Control
A robust ventilation plan prevents strong kitchen smells from drifting into the dining area. You must map ductwork paths early to ensure they stay hidden within the ceiling. Proper air circulation keeps the environment fresh and comfortable for everyone.
Visualize your Restaurant Floor Plans with Foyr
Foyr Neo stands out as the best interior design software because it combines powerful features with an interface that anyone can master. It allows you to move from a blank canvas to a fully rendered restaurant floor plan in a fraction of the time.
- You can access your projects from any device
- The platform includes a massive library of 50,000+ 3D models, including restaurant tables and commercial equipment
- It offers photorealistic renders that are processed in the cloud, so you do not need a powerful computer
- You can utilize the AI-assisted features to light your scenes and handle complex tasks automatically
- The software enables you to collaborate with your clients easily, so that you can make your vision a reality for them.
Choosing Foyr Neo means you are equipping yourself with the knowledge of how to create restaurant floor plan designs that impress clients. You avoid the steep learning curve of old CAD tools while achieving results that look just as professional. Whether you are designing fine dining restaurants or casual spots, you will find the tools you need.
Ready to transform your restaurant concepts into reality? Sign up for 14-day free trial of Foyr Neo today!
FAQs
How can I visualize a restaurant floor plan?
You can visualize your layout using cloud-based design software that converts 2D sketches into 3D models instantly. Tools like Foyr Neo allow you to create immersive walkthroughs, helping you see the space from a guest’s perspective. This process ensures you catch design flaws before construction begins, saving you significant time and money.
What is the 30-30-30 rule for restaurants?
The 30-30-30 rule is a standard financial guideline for maintaining restaurant profitability. It suggests allocating 30% of gross revenue to food costs, 30% to labor expenses, and 30% to overhead like rent and utilities. The remaining 10% represents your net profit. Keeping these ratios balanced is critical for ensuring your business remains sustainable long-term.
Which type of layout is best for a restaurant?
The ideal layout depends entirely on your specific service style and menu. An assembly line configuration works best for fast-casual venues prioritizing speed, while a zone layout suits establishments with diverse menu items. You should choose the configuration that maximizes your kitchen’s workflow and prevents staff from crossing paths unnecessarily during busy service shifts.
What type of flooring is best for a restaurant?
For commercial kitchens, non-slip vinyl or quarry tile is essential for staff safety and hygiene compliance. In the dining area, luxury vinyl planks or polished concrete are excellent choices because they are durable and easy to maintain. You must select a material that withstands high foot traffic while effectively matching your design aesthetic.



