The galley kitchen is often dismissed by clients as a compromise. With years of experience, you know it is actually a masterclass in efficiency. It remains the preferred kitchen design for anyone who loves to cook because it keeps tools accessible.
In 2026, the galley kitchen layout is considered a canvas for high-impact interior design. It allows you to transform a narrow space into a functional statement piece. You can deliver a space that balances ergonomic precision with aesthetic depth for your clients.
Whether you are presenting a concept for a Los Angeles apartment or renovating a historic row house, these ideas will inspire your next pitch. Explore 9 galley kitchen house plans that prove efficient design never requires a sacrifice of style.

Why The Galley Kitchen Layout Is A Good Choice?
Designing a galley kitchen layout requires prioritizing function. When executed correctly, this layout outperforms larger open-concept layouts in terms of efficient workflow and cost effectiveness for homeowners.
- Ergonomic Efficiency The layout naturally forms the perfect kitchen work triangle. You place the prep, cook, and wash zones in a tight formation. This layout is often called the best kitchen layout because it minimizes steps for the user.
- Zero-Waste Footprint A galley kitchen floor plan eliminates dead corners found in L-shaped or U-shaped kitchens. You utilize every inch of vertical and horizontal storage space. This approach maximizes utility while minimizing wasted square footage.
- Budget Allocation You typically require fewer cabinets and less counter space material. This efficiency allows you to allocate more budget toward high-end finishes and appliances for your client. You can invest in luxury materials that elevate the overall design.
Core Principles For A High-Functioning Galley Kitchen
Designing a galley kitchen requires precision. You must balance ergonomic efficiency with visual expansion to create a high-functioning culinary workspace that improves the kitchen feel despite the narrow footprint.
- Lighting As Architecture: A narrow galley kitchen feels claustrophobic without strategic planning. You must layer ambient and under-cabinet task lighting to eliminate shadows. This addresses the lack of natural light and visually extends the walls to expand the volume.
- Vertical Volume: Extend kitchen cabinets to the ceiling to maximize storage. This draws the eye upward and prevents the tunnel effect while housing seasonal items without using floor space. It uses height effectively to enhance the sense of space.
- The Clearance Rule: Ensure 4 to 5 feet of width between opposing counters. This allows comfortable passing for two people and ensures appliance doors open fully without obstruction. It prevents the kitchen space from feeling cramped.
- Material Continuity: Use continuous flooring and consistent countertop materials. This seamless visual flow tricks the eye into perceiving the galley layout as a longer, more cohesive space. It unifies the design language across the room.
- Appliance Integration: Select panel-ready or sleek appliances to blend with cabinetry. Reducing visual clutter prevents the tight quarters from feeling chaotic and maintains a streamlined aesthetic. This integration is key for a polished look in a small kitchen.
Once your layout is set, the next step is bringing it to life with realistic details. Learn how to render your galley kitchen to showcase materials and lighting effectively.
9 Galley Kitchen Ideas For Beautiful Homes
These nine concepts showcase how versatile a galley kitchen layout can be. You can adapt these specific styles to fit various architectural constraints and client preferences effectively.
1. The Modern Minimalist

This design strips away excess ornamentation to focus on clean lines. You create a calm environment where the architecture speaks for itself. The white cabinets and lack of hardware ensure that nothing protrudes into the valuable walkway space.
Key Features
- Handle-less cabinetry creates a smooth and uninterrupted visual flow.
- Integrated appliances disappear behind matching cabinet panels seamlessly.
- Monochromatic color palettes expand the perceived width of the room.
- Recessed lighting maintains a clean ceiling plane without obstruction.
Layout: Place the sink and cooktop on opposite walls to create a pivot workflow. Keep the fridge at one end to allow easy access without entering the main zone.
Foyr Neo Tip: Use the AI Magik tool to instantly generate lighting schemes. You can visualize how different color temperatures affect the stainless steel accents of this minimalist design.
2. The Asymmetrical Galley

This approach breaks the mirror-image effect often seen in traditional galleys. You dedicate one side entirely to tall cabinets and appliances while keeping the other side light. It is perfect for clients who need maximum storage solutions.
Key Features
- Floor-to-ceiling cabinets on one wall house the pantry and fridge.
- The opposite wall features only base cabinets to feel open.
- Floating open shelving replaces upper cabinets to reduce visual bulk.
- A stunning backsplash becomes the primary focal point of the room.
Layout: Load the heavy elements like the fridge and pantry on the interior wall. Keep the sink and prep area on the open wall to maintain a connection.
Foyr Neo Tip: Use the product library to find specific tall pantry units. Drag and drop them to see how much floor space they occupy in real time.
3. The Rustic Farmhouse Corridor

You can bring warmth to a narrow space by introducing natural textures. This style proves that a galley kitchen layout does not have to feel cold. It embraces character, making the space feel like the heart of the home.
Key Features
- Open shelves display pottery and everyday dishware accessibly.
- A vintage runner rug draws the eye down the center floor.
- Shaker-style base cabinets add traditional architectural detail and depth.
- Oil-rubbed bronze hardware provides a grounding contrast to light cabinets.
Layout: Center a farmhouse sink under a window if possible. Flank the range with open shelving to keep spices and oils within easy reach during cooking.
Foyr Neo Tip: Apply wood textures from the material library to your beams. Adjust the scale and rotation of the grain to ensure it looks realistic in the render.
4. The ‘Walk-Through’ Bar

This layout transforms a transition space into a functional entertaining hub. You utilize glass-front cabinetry to turn storage into a display feature. It works exceptionally well where the kitchen connects the dining area and living room.
Key Features
- Glass upper cabinets reflect light and showcase curated glassware.
- A beverage cooler is integrated into the lower cabinets.
- The countertop material serves as a durable drink preparation surface.
- Accent lighting inside cabinets creates a dramatic evening ambiance.
Layout: Design shallow cabinets on one side if the width is tight. Dedicate this narrower side to glassware storage and drink prep while the opposite side handles food.
Foyr Neo Tip: Use the glass material settings in Foyr Neo to control transparency and reflection. This helps you show clients how their crystal collection will sparkle in this small area.
5. The Window Seat Galley

You can soften the utilitarian nature of a galley by terminating the run with a seating area. This invites family members to linger without getting in the chef’s way. It turns a dead-end corridor into a destination for smaller spaces.
Key Features
- A built-in bench under the far window offers cozy seating.
- Drawers underneath the bench provide hidden storage for linens.
- The seat creates a social zone away from the heat.
- Natural light floods the length of the kitchen from the window.
Layout: Stop the cabinetry two feet before the end wall. Build the bench across the full width of the room to anchor the space and create a focal point.
Foyr Neo Tip: Create custom cushions using the ‘Create New Product’ tool. Select fabric textures that complement the cabinet color to tie the limited space together.
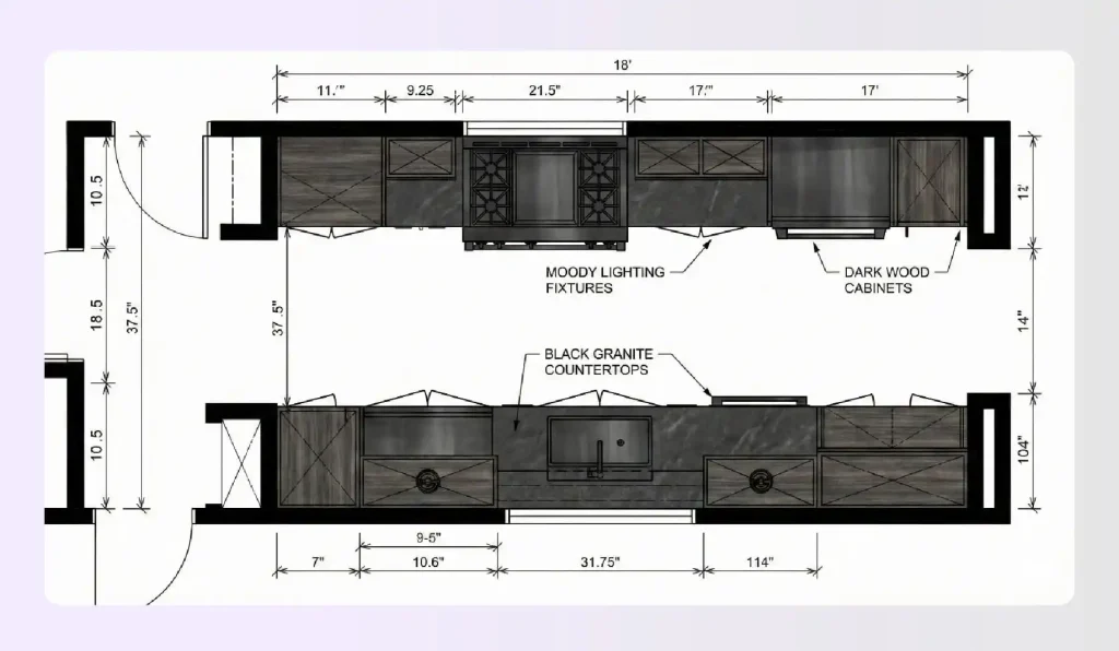
6. The Dark & Moody Corridor

Embrace the enclosed nature of the space by wrapping it in deep, rich colors. You create a jewel-box effect that feels sophisticated rather than small. This color palette choice requires confidence but delivers a high-end custom look.
Key Features
- Charcoal or blue cabinets absorb light to blur rigid boundaries.
- A dramatic kitchen backsplash adds movement and organic texture.
- Brass hardware pops against the dark background for luxury contrast.
- Lighting is crucial to prevent the space from feeling cave-like.
Layout: Keep the layout symmetrical to enhance the formal feel. Center the range on one wall and flank it with identical cabinetry for a balanced view.
Foyr Neo Tip: Experiment with matte versus gloss finishes on dark cabinets. The rendering engine captures how light interacts differently with these surfaces to offer design tips.
7. The Open-Ended Galley

This galley kitchen layout removes barriers to integrate the kitchen with the rest of the home. You allow light and traffic to flow freely through both ends. It makes the kitchen feel less like a corridor and more like a bridge.
Key Features
- Both ends of the kitchen remain open to adjacent rooms.
- Flooring continues uninterrupted into the living and dining areas.
- Sightlines remain clear from one end of the house to another.
- The kitchen becomes a central artery for home circulation.
Layout: Avoid placing tall appliances near the entries. Keep the ends of the cabinet runs open or rounded to welcome people into the kitchen remodel comfortably.
Foyr Neo Tip: Use the 3D walkthrough feature to simulate walking through the space. This helps you verify that the flow feels natural and unconstricted at both entry points.
Wondering how to create an impressive 3D walkthrough for your client presentation. Check out this tutorial from Foyr Neo to learn more:
8. The Semi-Open Peninsula

8. The Semi-Open Peninsula
You modify the traditional galley by replacing part of a wall with a peninsula. This maintains the efficiency of the parallel walls while allowing social interaction. It is a great compromise for clients who want a kitchen island.
Key Features
- One wall section is removed to create a seating overhang.
- The peninsula offers a breakfast bar spot for casual dining.
- The cook remains connected to guests in the living area.
- Additional counter space is gained without encroaching on walkways.
Layout: Convert the end of one run into the peninsula. Ensure there is enough clearance behind the stools for traffic to pass safely into the adjacent room.
Foyr Neo Tip: Use the ruler tool to measure the overhang precisely. You must ensure you have at least 12-15 inches of knee space for comfortable seating.
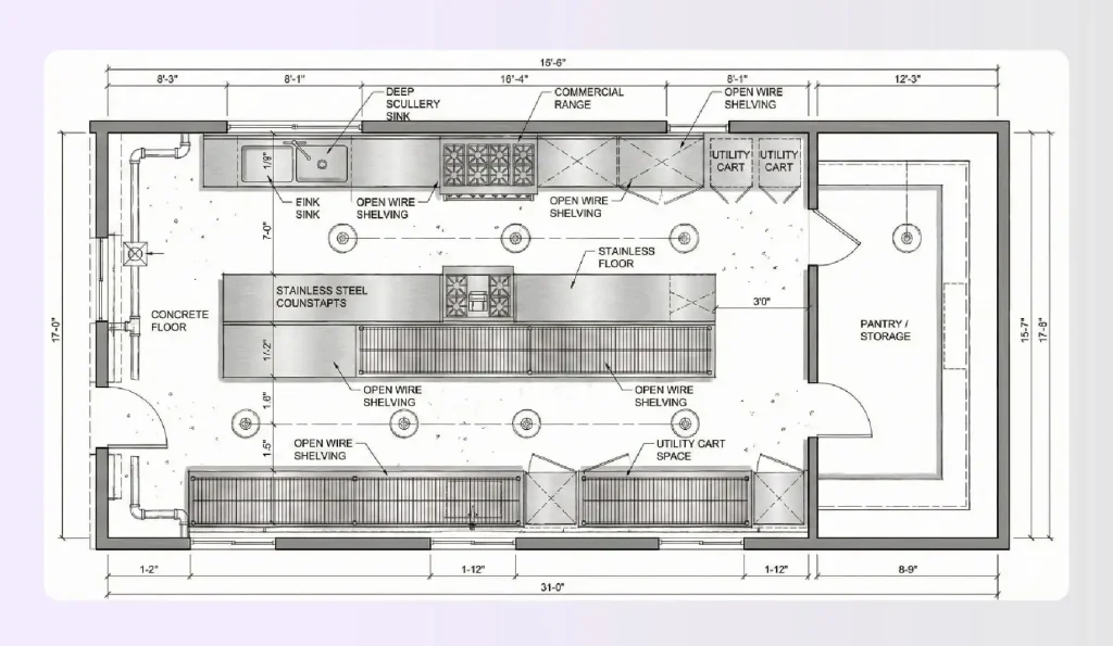
9. The Scullery Style

This utilitarian approach mimics the efficiency of a professional restaurant kitchen. You prioritize durability and accessibility over decorative fluff. It is an ideal kitchen design galley layout for serious home cooks who need robust performance for food preparation.
Key Features
- Stainless steel shelves replace cabinets for instant equipment access.
- Exposed pot racks keep heavy cookware within easy arm’s reach.
- Subway tile walls are easy to clean and reflect light.
- Industrial-style faucets and sinks handle large volume cooking.
Layout: Zone the kitchen strictly by task: prep, cook, and clean. Use mobile carts tucked under parallel counters to provide flexible workspace where it is needed most.
Foyr Neo Tip: Use the detach clone feature to customize standard shelving units. You can adjust the height of individual shelves to fit specific kitchen appliances perfectly.
Common Pitfalls To Avoid In Galley Kitchens
Even the best galley kitchen layout can fail if you ignore spatial dynamics. You must anticipate how people move to prevent the narrow galley layout from feeling overwhelming.
- The Appliance Jam: Placing the oven and dishwasher directly across from each other creates a traffic conflict. You should offset these appliances to allow for simultaneous access during busy meal prep times.
- The Tunnel Effect: Tall cabinets on both sides can make the room feel congested. You should use open shelving or glass fronts on one side to break up the visual weight.
- Poor Ventilation: A narrow galley kitchen traps heat and odors rapidly. You must specify a high-quality range hood to maintain air quality and keep the environment comfortable for the user.
- Ignoring The Focal Point: Leaving the far wall blank creates a dead end. You should use artwork or a window to draw the eye through the space and create a sense of depth.
Design Your Dream Galley Layout With Foyr Neo
Planning a narrow space is difficult to communicate with a flat 2D sketch. Foyr Neo allows you to test your galley kitchen layout drawing in 3D to ensure your client understands the vision.
Here is how our interior design software helps streamline your designing process:
- Generate photorealistic 12K renders of your galley kitchen design in minutes, not hours, impressing clients at every presentation stage.
- Access a library of 60,000+ product models including every cabinet style, appliance brand, and backsplash tile you need.
- Collaborate seamlessly by sharing a live 3D link with clients and contractors, eliminating miscommunication and costly on-site revisions.
- Use the AI-powered design assistant to receive layout optimization suggestions and avoid common galley kitchen planning mistakes.
- Create unlimited 360° walkthroughs so clients can virtually step into their future kitchen from any device, anywhere.
It is a great way to visualize every detail of the galley kitchen design instantly. Our kitchen design software helps you present a polished proposal for smaller homes, older homes, or larger kitchens alike.
Are you ready to sell your vision? Register for a 14-day free trial of Foyr Neo today.
Frequently Asked Questions (FAQs)
What is the meaning of Galley kitchen?
A galley kitchen consists of two parallel runs of units forming a central corridor. It is named after the compact kitchens found on ships. This type of kitchen optimizes efficiency by keeping all appliances and work areas accessible with minimal movement, making it a favorite for chefs.
What is the best layout for a galley kitchen?
The best galley kitchen layout places the sink and cooktop on the same side or opposite sides in an offset pattern. This preserves the work triangle. You should keep the refrigerator at one end of the run to prevent traffic from crossing through the cooking zone during meal preparation.
How can I make a galley kitchen look bigger?
You can increase the sense of space by using light colors and reflective surfaces. Installing open shelving instead of upper cabinets opens up the walls. Ensuring plenty of natural or layered lighting eliminates dark corners that make the room feel smaller than it actually is.
Are galley kitchens efficient for cooking?
Yes, they are considered the most efficient layout for cooking. The parallel counters place everything within a few steps. You can reach the sink, stove, and refrigerator easily. This ergonomic design reduces fatigue and streamlines the cooking process for a single cook, ensuring efficient use of space.
Can galley kitchens have islands?
Typically, a true galley is too narrow for an island due to limited square footage. However, if you have a width of over 12 feet, you can convert it into a galley kitchen layout with an island. Alternatively, you can use a peninsula that functions similarly.


