A ‘shotgun house’ instantly brings to your mind the images of train cars connected in a straight line, and you might have even heard the old tale that you can fire a shotgun straight through the front door and out the back without hitting a single wall. While that’s a vivid image, and frankly, a pretty slick way to describe the layout, this iconic American architectural style is so much more than a historical curiosity or a bowling alley disguised as a home.
In an age of shrinking urban lots and a growing interest in small space design ideas, shotgun house floor plans are experiencing a major revival, presenting a fantastic challenge for modern designers. Whether you are remodeling a historic gem or building new on a skinny profile infill lot, understanding this linear flow is crucial for success today.
This guide will walk you through the history, the types, the design secrets, and the practical tips you need to transform a narrow house plan thing (as some clients call it) into a truly stunning home. We will explore how to maximize every inch of space and turn these notoriously tight spaces into comfortable and light-filled sanctuaries for your clients.
What Is a Shotgun House Floor Plan?
A house plan for a shotgun home is a narrow and rectangular layout, typically no more than 12 to 14 feet wide, with its room layouts arranged one directly behind the other. The layout eliminates hallways entirely, forcing a linear progression through the living room, bedrooms, bathroom, and finally the kitchen at the very rear. It’s essentially the perfect narrow house for cramped city lots.
This design is believed to have its roots in Afro-Caribbean architecture, arriving in the United States through New Orleans in the early 19th century. It represents a unique cultural blend that prioritized communal living in tight communities and efficiency, eventually spreading up the Mississippi River to become a staple of Southern urban housing for decades.
It became the go-to solution for working-class families on skinny urban lots, as it was affordable to build. Its straight-through design was brilliant for cross-ventilation in hot, humid climates long before we had HVAC systems or central air. By opening the front and back doors, residents could create a great natural airflow to cool the entire structure.
Seeing a layout come together is often easier than thinking about it, especially when dealing with narrow constraints. Watch how quickly you can create floor plans on Foyr Neo.
Inspiring Shotgun House Floor Plan Ideas to Spark Your Design
Before you start knocking down walls or planning an addition, review these 11 distinct layout variations to see which one suits your client’s lifestyle and structural constraints best. From archival designs to modern versions, each offers a unique solution to the challenges of narrow living. It might seem like a crazy concept to some, but this unusual yet practical house style is a winner.
The Classic Single Shotgun House Floor Plan
This is the quintessential floor plan of a regular house in this style because it is efficient, straightforward, compact, and timeless. Most traditional narrow house idea files start here. You can utilize the Foyr Neo Trace Your Floor Plan feature by uploading an existing sketch and letting the AI convert it into a 3D model for you in minutes.
Layout Style: You can see how the rooms flow directly into each other. It usually features a covered front porch, making the most of every sq ft without any wasted hallway space.
Best For: Perfect for a single individual or a couple prioritizing historical charm and efficiency over privacy.

The Double-Barrel Shotgun House Floor Plan
Imagine two single shotgun houses joined side-by-side. This creates an instant duplex or a wider structure that accommodates more people. When designing double shotgun plans in Foyr Neo, you can use the Ruler Tool to ensure the shared central wall and room dimensions are perfectly symmetrical.
Layout Style: This layout offers two distinct living sides or a merged larger home with a central wall that divides the public and private areas effectively.
Best For: Ideal for multi-generational families or investors looking to create a duplex rental property.

The Camelback (or Humpback) Shotgun House Floor Plan
This variation features a second story chunk added to the rear of the house to gain extra square footage without changing the footprint. Foyr Neo’s cloud-based architecture allows you to toggle between floor levels instantly to visualize how the stairs and potential dormer windows impact the lower flow without needing local installations.
Layout Style: The ground floor maintains the traditional linear flow while the rear addition provides private upstairs bedrooms or a secluded master suite away from street noise.
Best For: Great for growing families who love the narrow lot lifestyle but need more sleeping quarters.

Image Credit: Pinterest, Wayne Sall
The Side-Hall Shotgun House Floor Plan
This layout introduces side hallways running the length of the house. This is a game-changer for avoiding awkward family situations where you have to walk through someone’s bedroom to get to the kitchen. You can use Foyr Neo’s drag-and-drop interface to quickly test different house plan designs and see how they impact the size of the adjacent rooms.
Layout Style: Instead of walking through a bedroom to get to the kitchen, you utilize a dedicated corridor that connects all rooms independently for better flow.
Best For: Essential for families or roommates who require privacy and do not want walk-through bedrooms.

Image Credit: Pinterest, Tara Pearl
The Side-Sandwich Shotgun House Floor Plan
This is often a wider version where the layout splits functions, sometimes sandwiching a utility core between living spaces. It helps designers fit enough bathrooms or even a chef’s pantry (or just a generous home’s pantry) into the mix. With the Foyr Neo AI Magik Bar, you can type commands to instantly furnish these tight utility spaces.
Layout Style: This plan widens the footprint slightly to allow for a more functional arrangement to place baths and closets alongside the main living areas.
Best For: Suitable for lots that are slightly wider than the standard 12 feet and allow for creative zoning.

Modern Open-Concept Shotgun House Floor Plan
Modern shotgun house plans often remove internal walls to create one large, continuous social space at the front. Use Foyr Neo’s 2D & 3D space planning to visualize the sightlines from the front door all the way to the kitchen to ensure the open concept kitchen living room feels cohesive and welcoming.
Layout Style: The living room, dining area, kitchen, and foyer merge into a single great room while the bedrooms remain tucked away at the back for privacy. It keeps the authentic shotgun vibes but updates the function.
Best For: Homeowners who love entertaining and want the home to feel larger and brighter than it actually is.

Shotgun House Floor Plan with Flexible Spaces
This design incorporates multi-functional rooms. Sometimes a tiny room needs to serve as a guest room, study, nursery, or den depending on the need. You can use the Detach Clone feature in Foyr Neo to modify furniture groups independently.
Layout Style: Flexible zones utilize pocket doors or movable partitions to change the function of a room instantly without permanent structural changes or heavy construction.
Best For: Remote workers or creative professionals who need their home to adapt to their changing daily workflow.

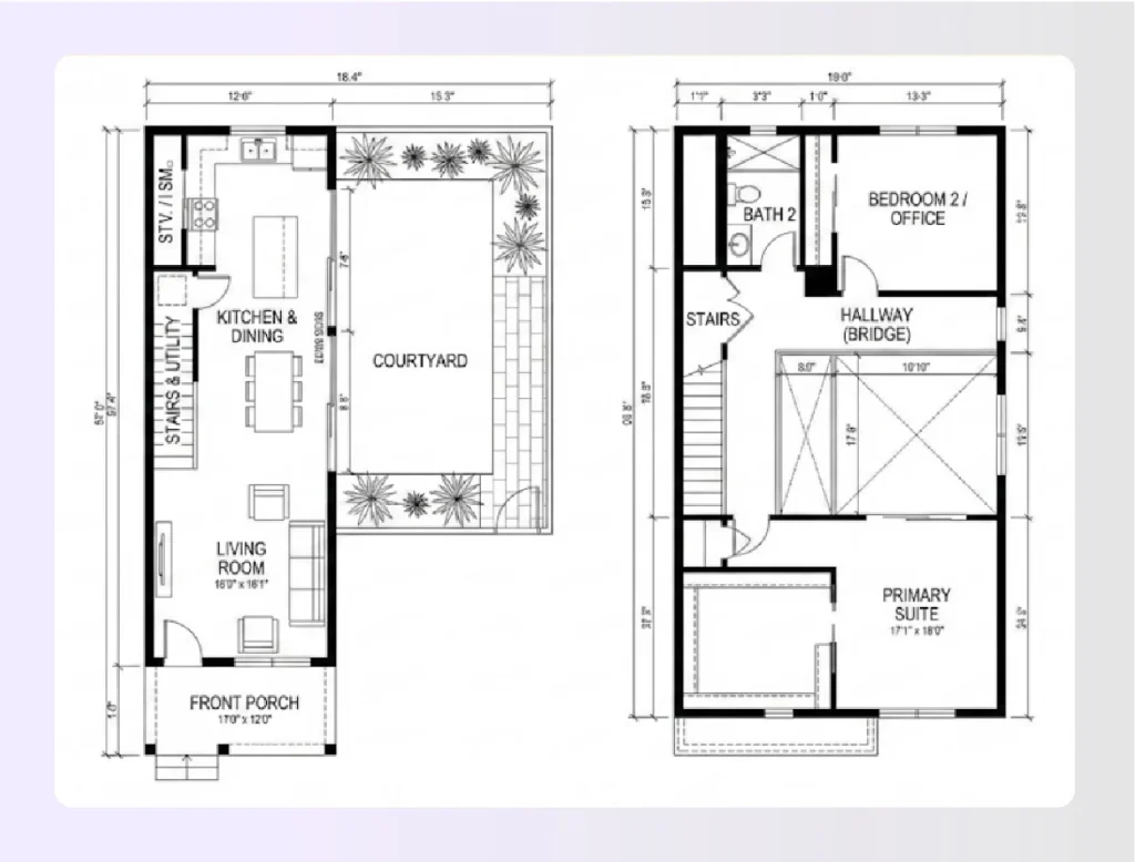
The Courtyard Shotgun House Floor Plan
This design incorporates multi-functional rooms. Sometimes a tiny room needs to serve as a guest room, study, nursery, or den depending on the need. You can use the Detach Clone feature in Foyr Neo to modify furniture groups independently.
Layout Style: A section of the side wall opens up to a private outdoor sanctuary that breaks the long tunnel effect of the interior effectively.
Best For: Urban dwellers who crave private outdoor space and natural light in the center of their home.

Multi-Level Living Shotgun House Floor Plan
This is a full two-story interpretation of the shotgun style, maximizing verticality on the irregularly shaped or narrow footprint. You can create immersive 3D walkthroughs with Foyr Neo to help clients experience the vertical transition.
Layout Style: Public spaces dominate the ground floor while the second floor is dedicated entirely to private bedrooms and bathrooms for better separation.
Best For: Families needing maximum square footage on a strictly limited urban land footprint.

Shotgun House Floor Plan with Integrated Outdoor Living
This is a full two-story interpretation of the shotgun style, maximizing verticality on the irregularly shaped or narrow footprint. You can create immersive 3D walkthroughs with Foyr Neo to help clients experience the vertical transition.
Layout Style: Large sliding or folding glass doors blur the boundary between the back of the house and the backyard garden for expanded living.
Best For: People who live in temperate climates and want to expand their entertaining space beyond the interior walls.

The Home Office Shotgun House Floor Plan
This layout prioritizes a dedicated workspace, often placed at the very front or very back. New shotgun designs often require this separation. You can simulate individual product lighting in Foyr to show how task lighting in interior design creates a focused work environment even in a narrow room without good natural windows.
Layout Style: A sound-insulated or distinct zone is carved out specifically for work to prevent domestic distractions from interfering with productivity during the day.
Best For: The modern work-from-home professional who cannot afford to work from the dining room table anymore.

Pros and Cons of a Shotgun Layout
Living in or designing for a floor plan shotgun house is a unique experience. While the whole style offers a distinct set of advantages, it also presents challenges for normal humans accustomed to wide, suburban spreads.
The Pros
- Ultimate Space Efficiency: There are zero wasted square feet in a traditional shotgun layout because the rooms themselves serve as the circulation paths, eliminating the need for dead hallways.
- Great for Narrow Lots: This design fits perfectly on affordable urban infill lots that are too slim for regular house styles, making homeownership accessible in dense city centers.
- Excellent Airflow: The alignment of the front and back doors creates a natural wind tunnel that cools the entire home efficiently, significantly reducing energy costs during the summer.
The Cons
- The Privacy Problem: You typically have to walk through bedrooms to get to other parts of the house in the purest shotgun house plan designs, which can be awkward for guests.
- Dark Middle Rooms: The rooms in the center of the house lack windows on the side walls and can feel cave-like without help from skylights or clever lighting.
- Challenging Furniture Layout: The long and narrow shape makes it difficult to arrange furniture without blocking the natural traffic flow compared to standard layouts.
Lighting is the make-or-break factor in shotgun homes, and rendering it correctly helps clients visualize the final result. Check out this guide on mastering lighting effects to brighten up those dark middle rooms with Foyr
Stop Guessing: How to Visualize Your Shotgun Style Floor Plans in 3D
You no longer need to rely on flat blueprints or client imagination to sell your renovation ideas for these challenging, narrow spaces. Foyr Neo empowers you to build, detail, furnish, and render your concepts with incredible speed using tools designed specifically for interior designers.
- The cloud-based architecture allows you to access your projects from any device without requiring high-end hardware or complex local installations.
- You can master the intuitive floor plan creation tools quickly because the drag-and-drop functionality simplifies the design process for beginners.
- The platform delivers fast rendering with 12K quality output in minutes instead of hours to present photorealistic scenes instantly.
- Use the AI Magik Bar to transform your design concepts into reality by typing simple text commands for instant changes.
- Access 60,000+ pre-built models to furnish your rooms rapidly without needing to download external assets or worry about compatibility.
With our interior design software, you can take your client on a virtual tour of their future home and show them exactly how the light hits the hallway or how the furniture fits.
Start your 14-day free trial today and master the art of the shotgun house.
FAQs
What is the size of a shotgun house?
A traditional shotgun house is typically very narrow, usually ranging from 12 to 14 feet wide. The length can vary significantly depending on the lot depth, often extending back 60 to 80 feet. This creates the signature rectangular shape seen in shotgun neighborhoods.
How much does it cost to build a shotgun house?
The cost varies by location and finishes, but they are generally more affordable than standard homes due to their simple rectangular footprint and smaller foundation. You can expect to pay between $150 and $250 per square foot, though custom historic renovations can cost significantly more depending on labor.
What is the typical layout of a shotgun house?
The classic layout consists of three to four rooms arranged linearly: a living room at the front, followed by one or two bedrooms, a bathroom, and a kitchen at the back. There are typically no hallways, meaning you must walk through one room to enter the next, creating a connected communal vibe.
What is the typical size of a shotgun house?
In terms of total area, these homes usually range from smaller cottages of around 600 square feet to larger family homes of up to 1,200 square feet. 3D rendering software and floor plan tools can help you maximize every inch of this limited footprint to ensure it feels spacious.
How do shotgun houses handle ventilation?
These homes were originally designed for hot climates. The alignment of the front and back doors allows breezes to pass straight through the entire house. High ceilings and tall windows further assist in drawing heat up and out, keeping the interior relatively cool without electricity or modern air conditioning systems.



