Table of Contents
In 2025 the trend shifts away from downsizing and focuses on rightsizing your life for better balance. Less square footage provides more freedom for you. You spend fewer hours scrubbing floors and gain more moments for living. Lower utility bills allow you to save money for travel.
We will show you the hottest design styles of the year and how to mix them with clever layouts to create a home that feels massive. You will discover how small house plans under 1000 sq ft offer everything a larger home does without wasted space.
Ready to see how much life you can fit into 1000 square feet? Let us dive into these transformative designs. We have curated the best layouts to help you build a dream home that prioritizes efficiency and style over excessive and unused space.
Why Building Small is the Big New Thing
Choosing a compact footprint is a strategic lifestyle decision. It offers financial freedom and encourages high-quality design choices.
- Cost-efficient: Smaller foundations require less lumber and less labor. This reduces your initial investment and long-term maintenance costs significantly. You can often build a high-end small home with luxury finishes for the same price as a basic builder-grade large home.
- Enhanced Comfort: Small spaces are naturally cozier and encourage interaction between family members. It is easier to create that warm and safe feeling when every room is designed with intention. You will find yourself enjoying the closeness rather than feeling isolated in distant rooms.
- Creative Design Potential: Designing modern house plans under 1000 sq ft forces you to be clever with every single square foot. You stop taking space for granted and start making every inch work for you. Every corner becomes an opportunity for smart storage solutions.
10 Best Small House Plans Under 1000 Sq Ft (Layouts + Styles)
Here are the most effective layouts for small house plans under 1000 sq ft that prove you do not need a mansion to live luxuriously. These designs prioritize comfort and functionality while ensuring you maximize every inch of your property.
Open Concept Studio Plan (450 Sq Ft)
Visualizing the flow is critical to avoid a cramped feeling in tight footage. Using Foyr Neoโs drag and drop floor plan creator you can easily experiment with furniture placement. This helps ensure your small house plans under 1000 sq ft maintain open and breathable pathways for daily movement.
The Layout: ย A classic open floor plan where the kitchen flows directly into the living area. A sleeping nook sits behind a slat-wood divider or a bookshelf to maintain airflow while providing visual separation.
The Vibe: Light woods white walls and zero clutter create an airy and Scandinavian aesthetic. It feels expansive despite the limited size of the apartment unit.
Why It Works:ย By skipping full walls for the bedroom you borrow light from the living room windows. This makes the whole apartment feel twice as big. It is perfect for the resident who wants a chic city pad.

Small house plans under 1000 sq ft studio layout with airy separation, Image Credit: Pinterest, Designing Idea
2-Bedroom Modern Farmhouse Plan (850 Sq Ft)
You can capture the rustic charm of a farmhouse without the sprawling footprint by focusing on key architectural details. With Foyr Neoโs extensive material library, you can test different wood textures and shiplap finishes. This helps you perfect your house plans under 1000 sq ft before buying a single board.
The Layout: ย A central living space sits flanked by bedrooms on either side. This design eliminates hallways to maximize usable living space in the home. It ensures every square foot serves a functional purpose.
The Vibe: Warm wood tones and vaulted ceilings create a cozy atmosphere. Large black framed windows add a modern country aesthetic to the compact interior.
Why It Works:ย The vaulted ceilings draw the eye upward and create vertical volume. This makes the compact floor plan feel incredibly spacious. It combines traditional comfort with modern efficiency for a timeless family home.

Vertical height adds grandeur to house plans under 1000 sq ft, Image Credit: Pinterest, Architectural Designs House Plans
1-Bedroom Plan with Home Office (700 Sq Ft)
Remote work requires a dedicated space that does not intrude on your relaxation zones at the end of the day. You can use Foyr Neoโs AI Magik Bar to instantly furnish the office space. This helps visualize how it fits into your small house plans under 1000 sq ft.
The Layout: ย A standard one-bedroom setup includes a dedicated small pocket office. It features a sliding barn door for privacy during calls. The workspace is distinct from the living area to ensure focus.
The Vibe: Productive and sleek, utilizing sound-dampening materials. Focused lighting creates distinct zones for work and rest. The atmosphere is professional yet comfortable for long days.
Why It Works:ย It acknowledges the reality of working from home by providing a physical boundary. This separation between your career and your personal life is essential for mental well-being in a small footprint.

Dedicated workspaces elevate small house plans under 1000 sq ft, Image Credit: Gemini (AI-generated)
Two-Story Loft Plan (950 Sq Ft)
Separating living and sleeping areas by floors makes a small home feel like a traditional house. You can use the Foyr Pan Feature to adjust camera positions. This allows you to showcase the dramatic ceiling details often found in these modern house plans under 1000 sq ft.
The Layout: ย Living and dining areas occupy the ground floor for daily activities. A staircase leads to a private bedroom loft overlooking the space below. This creates a vertical separation between public and private zones.
The Vibe: Urban industrial cool with exposed beams and metal railings. These elements emphasize the structure’s height and openness while adding character.
Why It Works:ย The double-height living room creates a sense of grandeur and luxury. This feeling is rarely found in single-story small homes. It maximizes the volume of the house without increasing the footprint.

Lofts maximize volume in modern house plans under 1000 sq ft, Image Credit: Pinterest, The House Designers House Plans
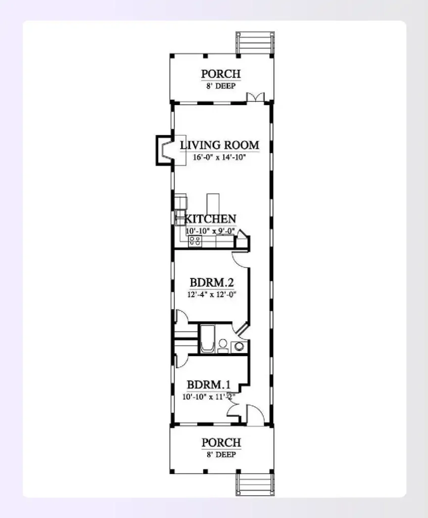
Narrow Lot Shotgun Plan (900 Sq Ft)
Building on a narrow urban lot requires precision to ensure furniture fits and traffic flows smoothly through the elongated space. Foyrโs Ruler Tool is essential here to verify that clearances meet code requirements. It ensures your shotgun house plan under 1000 square feet is functional.
The Layout: ย Rooms are arranged sequentially, one behind the other, to fit narrow lots. Typically, it starts with the living room and ends with the kitchen at the back to optimize the flow.
The Vibe: Historic charm meets modern efficiency in this linear design. A long hallway often doubles as a gallery wall for art and photos to add personality.
Why It Works:ย This layout eliminates the need for complex rooflines. It fits perfectly into tight city lots where width is a major constraint. It allows homeowners to build comfortably in dense urban environments.

Linear layouts optimize narrow house plans under 1000 square feet, Image Credit: Pinterest, Tara Pearl
L-Shaped Courtyard Plan (980 Sq Ft)
Integrating indoor and outdoor living is the secret weapon for making small homes feel significantly larger than they actually are. Use Foyrโs Dome Lighting feature to enhance your outdoor renders. This ensures the courtyard looks inviting and realistic in your small modern house plans under 1000 sq ft.
The Layout: ย The house wraps around a central deck or garden to create privacy. Large sliding glass doors connect the living area and bedroom to the outdoors for seamless access to fresh air.
The Vibe: Private and serene creating a personal oasis. This design turns the outdoors into an extension of your living room and enhances the feeling of space.
Why It Works:ย The glass walls visually extend the floor plan to the property line. This blurs the boundary between inside and outside. It creates a private retreat that feels much larger than the actual footage.

Outdoor rooms help expand small modern house plans under 1000 sq ft, Image Credit: Pinterest, Susann Elgh Abrin
Learn how to create photorealistic renders in minutes with Foyr Neo:
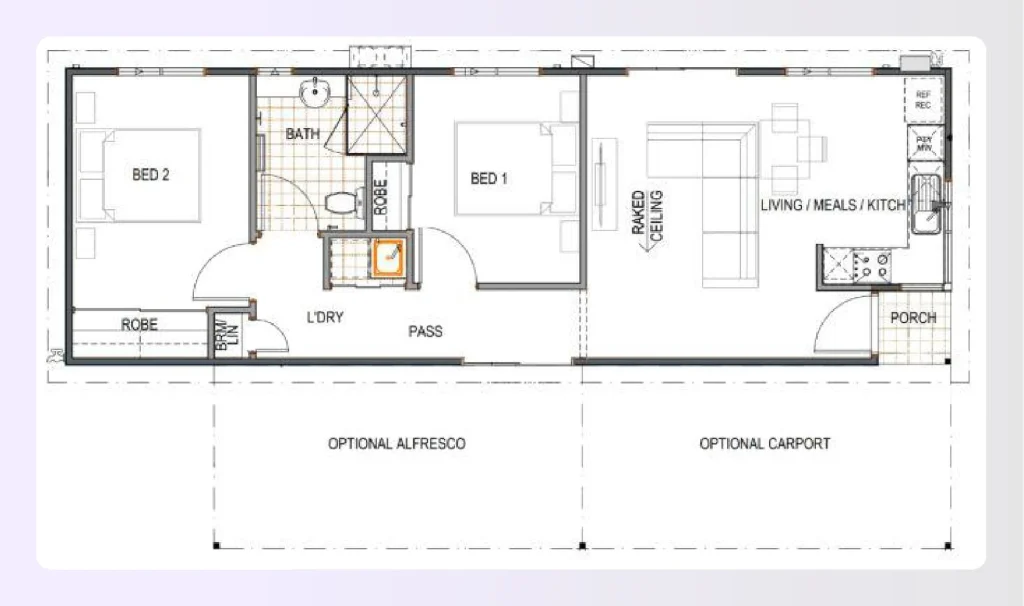
Split-Bedroom Floor Plan (1000 Sq Ft)
Privacy can be hard to come by in small homes so strategic room placement solves this common issue effectively. You can visualize privacy levels by using Foyrโs 3D Walkthrough feature. This helps you navigate the home plans under 1000 sq ft as a resident would experience it.
- The Layout: ย The master suite is located on one side of the central living area. The secondary bedroom is on the opposite side to create physical separation between the sleeping zones.
- The Vibe: Balanced and private offering distinct zones for parents. It allows for separation between children or hosts and guests within a compact footprint.
- Why It Works:ย It provides maximum privacy for occupants without requiring a second story. You avoid a long and space-wasting hallway to separate rooms. It creates a quiet retreat for everyone in the house.

Zoning creates privacy in home plans under 1000 sq ft, Image Credit: Pinterest, Liberty House Plans
The A-Frame Cabin Plan (750 Sq Ft)
The iconic A-frame shape is structurally efficient and perfect for scenic locations where you want to maximize views of nature. Modeling unique rooflines is straightforward with Foyrโs 3D design tools. You can see how the steep angles impact interior headroom in your small house plans under 1000 sq ft.
The Layout: ย A steep triangular roofline creates a cozy main floor living area. A sleeping loft is tucked into the peak above to utilize the vertical space created by the roof structure.
The Vibe: Adventurous and nostalgic evoking memories of mountain getaways. It connects deeply with the surrounding natural environment and feels like a vacation home.
Why It Works:ย The high peak creates a stunning vaulted ceiling in the living area. The design sheds snow and rain efficiently in harsh climates. It is a durable and beautiful choice for nature lovers.

High ceilings open up small house plans under 1000 sq ft, Image Credit: Gemini (AI-Generated)
Modular Prefab 2-Bedroom Plan (990 Sq Ft)
Speed and precision are the hallmarks of modular construction, which is perfect for budget-conscious builders who want quality. Foyrโs 10,000+ design templates can help you visualize modular configurations. You can see house plans under 1000 sq ft clearly before fabrication begins at the factory.
The Layout: ย Composed of pre-fabricated sections that snap together easily. It creates a streamlined rectangular or L-shaped home with modern finishes and efficient room dimensions.
The Vibe: Efficient and contemporary prioritizing function and sustainability. The home features a clean and industrial edge that looks high-end and modern.
Why It Works: It significantly reduces construction waste and the timeline. This method gets you into your new efficient home faster than traditional building methods. It controls costs and quality in a controlled factory setting.

Prefab offers speed for house plans under 1000 sq ft, Image Credit: Pinterest, Evoke Living Homes
Simple Ranch Open Flow Plan (925 Sq Ft)
Sometimes the simplest solution is the best offering easy accessibility and a timeless layout that appeals to everyone. These house plans 1000 sq ft and under are easy to model. They serve as a great starting point for first-time builders or those looking to downsize.
The Layout: ย A rectangular single-story layout with a combined kitchen and dining area. A spacious living room is located at the front of the house for easy access and welcoming guests.
The Vibe: Timeless and practical offering a familiar domestic feel. It is easy to furnish and easy to navigate for all ages and lifestyles.
Why It Works:ย The lack of stairs and complex angles makes it cost-effective. It is the easiest shape to build and maintain. This simplicity ensures the budget goes towards finishes rather than structure.

Simplicity rules in house plans 1000 sq ft and under, Image Credit: Pinterest, Etsy
Check out this video on how to quickly create these small house plans under 1000 sq ft in minutes with Foyr
3 Common Mistakes to Avoid When Building Small
Designing house plans under 1000 sq ft is a game of inches where precision is critical. One wrong move and your cozy cottage feel like a cramped closet.
- Inefficient Door Placement: Watch out for doors that bang into each other. In small hallways, use pocket doors or barn doors to save precious swing space. This keeps traffic flow unobstructed and smooth in your small house plans under 1000 sq ft.
- Underestimating Natural Light: In a small house, dark corners feel oppressive. If you cannot add more windows, add mirrors to the walls. They bounce light around and trick the brain into thinking the room continues to expand, creating a sense of perceived space.
- Using Oversized Furniture: A standard sprawling sectional sofa will eat your entire living room. You need furniture with legs as seeing the floor underneath makes the room feel bigger. Use multi-functional items like ottomans with storage to maximize your square footage.
Design Your Own Small House Plan with Foyr Neo
Living small does not mean thinking small. It means thinking smarter about every decision you make for your home. This is where Foyr Neo empowers you to take control of your vision. It helps you execute your design flawlessly.
- Use intuitive drag and drop tools to build walls and rooms in minutes without needing any complex technical training.
- Switch from 2D plans to 3D walkthroughs with a single click to visualize your entire space instantly.
- Choose from 50,000+ furniture models to furnish your space with diverse real-world items and textures.
- Simulate real-world lighting to ensure your small home feels bright and welcoming at any time of day.
- Design from anywhere using the cloud-based platform without installing any heavy software or plugins on your device.
Whether you love the sleek look of modern house plans under 1000 sq ft or rustic charm the perfect layout awaits. Or better yet, it is waiting for you to create it using the best interior design software that make the process easy and fun.
Donโt let a lack of square footage limit your imagination. Start your 14-day free trial of Foyr Neo today and begin building your dream small house plans under 1000 sq ft with confidence.
FAQs
Is 1,000 sq. ft. enough space for a family?
Yes, absolutely, provided the layout is efficient. Many families live comfortably in house plans under 1000 sq ft by prioritizing shared common areas and utilizing vertical storage. The key is to minimize hallways and maximize multi-functional spaces like open concept living and dining rooms. It requires a shift in mindset towards shared experiences.
How many bedrooms can a house under 1,000 sq. ft. typically have?
Most home plans under 1000 sq ft comfortably accommodate two bedrooms and one or two bathrooms. However, efficient three-bedroom layouts usually exist by utilizing smaller bedroom dimensions of around 9 by 10 feet. They often share a single central bathroom to save space in the living areas. This trade-off maximizes the communal space.
Are small house plans energy-efficient?
Generally, yes. Small house plans under 1000 sq ft have less interior volume to heat and cool. This leads to significantly lower utility bills. Their smaller roof surface area and foundation footprint also mean fewer materials are required. This reduces the overall embodied energy of the home construction. It is an eco-friendly choice.




