Picture your latest project where the client requests a stunning sanctuary. Now imagine you must ensure a wheelchair navigates that space seamlessly. You realize that tight corners transform a dream home into a frustrating obstacle course. This presents the difficult challenge of balancing high-end beauty with strict functionality for your clients.
You likely encounter clients who believe accessible design requires a sterile environment. It is crucial to communicate to them that wheelchair-accessible floor plans are smart design choices. These layouts create comfortable spaces that welcome people of all ages without barriers or clinical aesthetics.
This guide will help you look past complex building codes to find creative solutions. You will discover how to design handicap accessible home plans that feel sophisticated and explore specific layouts that prioritize independent living while maintaining design standards.
What Exactly Is a Wheelchair Accessible Floor Plan?
Wheelchair-accessible floor plans are layouts designed for independent living, focusing on clearance and reach along with ease of movement. It prioritizes a floor plan where barriers are removed so occupants can navigate comfortably without relying on assistance for daily tasks or facing mobility issues.
Universal Design vs. ADA
- ADA: These strict federal regulations apply to public spaces and commercial projects. These laws mandate equal access for individuals and ensure your designs comply with the Disabilities Act.
- Universal Design: This is an inclusive approach in residential homes to improve daily functionality. It accommodates everyone from toddlers to wheelchair users and ensures that the home stands the test of time.
Why It Matters: Whether you are designing for a client or building your own forever home, accessible home plans increase resale value and ensure you never have to move just because your mobility changes or you enter your golden years.
The Big Three Rules for Handicap Accessible Floor Plans
You must master these three rules as they determine the mobility in a home and ensure that it meets the specific needs of the residents:
- The Magic Number of 60 Inches: You need a five-foot circle of clear floor space in every major room, including the kitchen and bedroom. This ensures a wheelchair turns around 360-degrees without bumping into any furniture or walls.
- The Wide Route: Hallways need to be wider than you think because standard sizes remain too narrow. Handicap accessible floor plans require at least 42 inches of width in hallways and 32 to 36 inches for wider doors.
- The Zero-Step Entry: No stairs at the front door means you must grade the land so the path remains smooth. You can also hide wheelchair ramps in the landscaping, so the entrance never looks like a commercial loading dock.
You need to master navigation to understand how a wheelchair moves through a virtual space. Watch this tutorial on navigation basics in Foyr Neo to see how you can inspect your accessible layouts from every angle.
8 Genius Wheelchair Accessible Floor Plan Concepts
We have curated eight layouts that prove accessibility can be stylish and functional for any homeowner looking for the right layout.
The Zero-Barrier Wheelchair Accessible Ranch
The classic single-story layout features no stairs and no sunken living rooms. It offers one smooth and continuous surface from the front door to the back patio to ensure low physical effort for residents.
With Foyr Neo’s 2D to 3D conversion tool, you can instantly visualize this continuous flow. Drawing a ranch layout takes minutes, and you can immediately switch views to check for any hidden elevation changes or barriers.
This leads us to the core appeal of this specific layout for your clients.
- The Concept: The classic single-story layout means no stairs, no sunken living rooms and just one smooth, continuous surface from the front door to the back patio.
- Why it works: It is the easiest to build and navigate, making it perfect for wheelchair-accessible floor plans that prioritize simplicity for users.

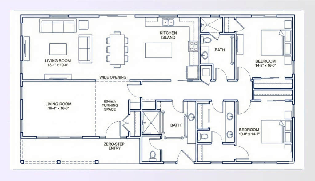
The Wheelchair Accessible Open-Concept ‘Great Room’
Knocking down walls between the kitchen, dining, and living areas creates massive shared spaces. This eliminates tight corridors and opens up the heart of the home for better social interaction and movement.
Use Foyr’s AI interior design generator to furnish these large spaces. The software helps you place furniture to maintain that critical 60-inch turning radius while keeping the room cozy and functional. This approach transforms how a wheelchair user experiences the home.
- The Concept: Knocking down walls between the kitchen, dining and living areas creates massive shared spaces that eliminate tight corridors and open up the heart of the home.
- Why it works: Walls are the enemy of wheelchairs, so this layout maximizes the turning radius and lets the user be part of the conversation from anywhere in the area.

The ‘L-Shaped’ Wheelchair Accessible Courtyard Plan
The house is built around a central outdoor space or deck. Every major room opens directly onto this courtyard through large sliding glass doors or wider doorways for seamless indoor-outdoor living.
Foyr Neo allows you to render realistic outdoor lighting using cloud-based rendering. You can simulate how sunlight hits the courtyard to ensure your wheelchair accessible floor plans look bright and inviting throughout the day.
- The Concept: The house is built around a central outdoor space, with every major room opening directly onto this courtyard through large sliding glass doors or wide doorways.
- Why it works: It brings nature to the user without requiring them to navigate uneven terrain, integrating exterior spaces into the daily living experience while maintaining a secure environment.

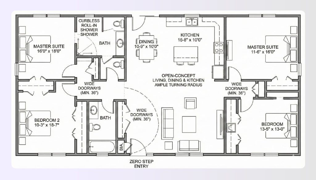
The ‘Split-Bedroom’ Wheelchair Accessible Design
The primary suite is located on the opposite side of the house from the secondary bedrooms. A wide central living area connects the two wings to create distinct zones for privacy. This is a staple in wheelchair accessible floor plans because it provides privacy while keeping common areas wide and navigable. It ensures that traffic flow remains unobstructed across the main living zones.
- The Concept: The primary suite is located on the opposite side of the house from the secondary bedrooms, while a wide central living area connects the two wings.
- Why it works: The central gathering space eliminates the need for long and narrow hallways, providing privacy while keeping common areas wide and navigable for smooth wheelchair traffic flow.

The ‘Pocket Door’ Palace
Standard swinging doors are replaced with doors that slide into the wall. This architectural choice saves floor space and removes the awkward dance of opening a door from a wheelchair.
You can access Foyr’s extensive 3D model library to find various door styles. Drag and drop pocket doors into your design to see exactly how much floor space you save compared to traditional swing doors.
- The Concept: Standard swinging doors are replaced with doors that slide into the wall, saving floor space and removing the awkward dance of opening a door from a wheelchair.
- Why it works: Swinging doors eat up valuable floor space and block pathways, but pocket doors disappear completely to leave wider doors and unobstructed paths for smooth wheelchair access.

The Dual-Suite (Multi-Gen) Layout
This home features two primary bedrooms with en-suite accessible bathrooms. It is designed for multifamily housing where aging parents or family members with specific needs can live comfortably.
A robust 3D rendering software like Foyr helps you style each suite differently. You can show clients how one suite serves a wheelchair user with lower countertops while the other remains standard. This flexibility is crucial for modern families living together.
The Concept: This home features two primary bedrooms with en-suite accessible bathrooms, designed for multigenerational living where aging parents or family members with specific needs can live comfortably.
Why it works: It accommodates people of all ages and abilities under one roof, allowing each suite to be tailored to mobility needs without creating a clinical facility vibe.

The Accessible ADU (Granny Pod)
A standalone accessory dwelling unit in the backyard is designed for full accessibility. It functions as a complete, compact home with everything reachable from a seated position for independent living.
These compact wheelchair accessible floor plans are efficient and often utilize open floor plan concepts to maximize limited square footage while ensuring that every inch serves a specific purpose for the occupant.
- The Concept: A standalone accessory dwelling unit in the backyard designed for full accessibility, functioning as a complete, compact home with everything reachable from a seated position.
- Why it works: It offers independence for the user while keeping support nearby, utilizing open concepts to maximize square footage and ensure efficient navigation in a smaller footprint.

The ‘Wet Room’ Flow
The main bathroom is fully waterproofed, with a curbless shower. The flooring is continuous, creating a large, open area where water drains efficiently without barriers or lips.
Use the textures and finishes library in Foyr to select non-slip tile textures. You can customize the look to prove that safety features like grab bars and wet rooms can be stylish.
- The Concept: The main bathroom is a fully waterproofed space with a curbless shower, with continuous flooring that creates a large, open area for efficient drainage.
- Why it works: It eliminates the most dangerous barrier in the home, the bathtub wall, making this style a most common feature of an accessible design that looks high-end.

Things to Keep in Mind When Designing Accessible Home Plans
You need to pay attention to specific details along with the general layout because small dimensions make a big difference.
The Kitchen
- Counter Heights: Varying heights allow for lower counter prep stations ensuring comfort for every single user.
- The Work Triangle: Keep the stove and sink close to minimize travel distance and maximize kitchen efficiency.
- Toe Kicks: High clearance allows for wheelchair access under cabinets so users get closer to workspaces.
The Bathroom
- Curbless Showers: Ensure flush transitions for easy roll-in access without dangerous tripping hazards or water barriers.
- Grab Bar Reinforcement: Install blocking behind walls now so you can add just grab bars securely later.
- The Toilet Transfer: Allow clear floor space next to the toilet seat for safe and easy transfers.
The Bedroom & Living Areas
- Circulation: Leave wide paths around beds to accommodate mobility devices and ensure easy turning circles.
- Flooring Matters: Choose hard surfaces like wood or tile for easier rolling rather than high-pile carpet.
How to Design Wheelchair Accessible Floor Plans in Foyr Neo?
Foyr Neo makes it incredibly simple to create and validate your accessible home plans with precise measurement tools.
- Draw Your Walls: Start with the draw walls tool to quickly outline the basic shape of the residence, ensuring you have the correct square footage before refining the interior layout for accessibility.
- Adjust Dimensions: Drag walls to ensure those 42-inch hallways fit perfectly, validating that your floor plan meets the specific clearance requirements needed for smooth wheelchair navigation throughout the entire home.
- Add Accessible Fixtures: Search the vast Foyr library for specialized items like ‘grab bars’, ‘roll-in showers’, or specific furniture to ensure your design is both functional and aesthetically pleasing for your clients.
- The ‘Seated View’: Set your camera height to 42-48 inches to see the room from a wheelchair user’s perspective, allowing you to catch visibility issues that a standing person might miss.
- Render: Hit the button to get a photorealistic rendering that proves accessible can be beautiful, helping you sell the concept to clients who might fear a clinical or sterile look.
Lighting is critical for visibility in accessible homes, especially for users with visual impairments. Learn how to master lighting settings in this quick guide to make your designs shine and ensure safety.
Build for Independence with Foyr Neo
Designing for accessibility implies creating freedom for homeowners to live safely in their own space. As a leading interior design software, Foyr Neo gives you the power to create wheelchair accessible floor plans that are accurate, beautiful and fully compliant with universal design means for clients.
- The cloud-based platform lets you design projects from anywhere without needing high-end hardware or complex local installations.
- Intuitive drag-and-drop tools make adjusting wider hallways fast and simple for quick iterations during client design reviews.
- Smart AI lighting ensures every corner is visible and safe while maintaining a warm and inviting atmosphere.
- A massive library provides universal design features and furniture to style accessible spaces without finding external downloads.
- Fast rendering helps clients visualize their accessible home immediately, reducing the time typically spent on manual explanations.
Sign up for free trial of Foyr Neo today. Stop stressing over blueprints and start visualizing your client’s forever home in stunning 3D in minutes.
FAQs
How much does it cost to build a handicap accessible house?
The cost varies based on sq ft and the selected finishes. However, building wheelchair accessible floor plans from scratch is often cheaper than renovating later. Expect to pay a premium of 1-3% for wider doors and professional house plan modifications compared to a standard build, but this investment significantly future-proofs the property value.
How to design a handicap accessible house?
Start by prioritizing the right layout with an open concept flow. Focus on extra-wide hallways, step-free entries, and a shower seat. Use software like Foyr Neo to visualize the space and ensure wheelchair users have a full 60-inch turning radius in every room, maximizing independence and comfort.
How long should a ramp be for a 3-foot rise?
According to strict ADA standards, you need one foot of ramp for every inch of rise. For a 3-foot rise, you need a 36-foot-long ramp to ensure the slope is safe for mobility devices. This gentle ratio ensures that low physical effort is required for independent access to the home.




